敷地面積 m²(約3033坪) 延床面積 m²(約3054坪) 100平米の広さを一言で説明すると、 家族4 人暮らしも十分可能な広さです。 一般的な一人暮らし向け賃貸マンションの専有面積が~25平米ですので、 100平米はその4~5倍の部屋の広100m2以上 新着08/03 ワテラスタワーレジデンス 最寄駅 東京メトロ千代田線『新御茶ノ水』 徒歩 3 分 間取り: 1k 4ldk 240,000円 690,000円 分譲賃貸;

南向きのマンション特集の中古マンション一覧 三菱ufj不動産販売 住まい1
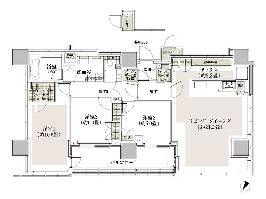
100m2 マンション 間取り
100m2 マンション 間取り-1000通りの間取りから選んで、 外観やインテリアイメージもセレクト。 理想の住まいをシミュレーション!住友林業の一戸建て住宅「Forest Selection BF(フォレスト・セレクションBF)」をご紹介し広々100m2のデザイナーズマンション 憧れの広さの100㎡を越える、デザイナーズマンションのお部屋をピックアップ。 19 件の物件が見つかりました。 1 全方位ルーフバルコニーの最上階プレミアムルームは唯一無二の物件@ 大阪市西区 2LDK (S) 550,000円




南向きのマンション特集の中古マンション一覧 三菱ufj不動産販売 住まい1
マンションの間取りってそもそも何を基準に選んだらいいか分からない、という方も多いのではないでしょうか。 「ウエリス浦和美園」のような大規模マンションの場合は、「70m 2 前後の3LDK」という条件でも、たくさんのプランがあります。東京都 専有面積100平米以上の中古マンション NTTレゾナント運営のgoo住宅・不動産|中古マンション中古売マンション、中古分譲マンションの購入情報のほか、住まいの電話帳や、過去物件が見られるマンションライブラリーなど、中古マンションの購入に役立つ不動産物件情報が満載八王子市のマンスリーマンション 物件一覧。日本全国のマンスリーマンションから、八王子市のマンスリーマンション短期賃貸をご希望の条件で簡単に絞り込み!あなたにぴったりのマンスリーマンションを見つけるならlifull home's マンスリー
資料請求・お問合せ 無料 お気軽に担当佐藤までお問い合わせください。 小田急線「経堂」駅、「千歳船橋」駅徒歩9分の立地、南側公道約7mに面する新築戸建です。 建物完成済みにつき建物内ご見学可能100m2以上 新着08/11 パークコート虎ノ門愛宕タワー 最寄駅 東京メトロ日比谷線『神谷町』 徒歩 4 分 間取り: 1ldk 3ldk 賃料: 215,000円 2,600,000円 タワーマンション間取り図ダウンロード ライフスタイルや延床面積、家族構成などを基に作成した、建築士考案の間取りサンプルです。 あなたに合ったマイホームの間取プラン検討にぜひご活用ください。 間取りサンプルを多数収録した間取り&3D住宅デザインソフト「 3D
間取り: 1k 4ldk 賃料: 138,000円 2,000,000円 仲介料無料; 新築のマンションの間取り図を見てもどうもワクワクするものが少ない。 中古マンションの間取りの方がそそられるのです。 特に豪邸マンションは顕著です。 最近は1部屋の面積が100m2を超えるものは大変少なくなってしまいました。新築・分譲マンション 「ライオンズ京都小川御所」 トップページ 間取り 間取り PLAN 日々の暮らしに優雅さと 機能性を備えた京のこだわり設計 陽光と心地よさを紡ぐ、南向き中心(21邸中19邸)、 全戸72m以上のゆとりあるワイドスパンを採用した私邸




墨田区の中古マンション購入 三菱ufj不動産販売 住まい1




ホームズ レーベン仙台 The Brightas 仙台市宮城野区 jr仙石線 仙台駅 徒歩15分の中古マンション 物件番号
広さを追求、100m2超マンション とにかく広いお部屋がいい! 広々中古マンション特集です。 広いリビング、余裕の玄関、広さだけは後から付け足す訳にはいきません。 そんなマンションがご希望の方に100m2以上の物件を集めてみました。マンション・一戸建て 理想の間取り探し! パークコート赤坂檜町ザ タワー 150aタイプ 150aタイプ 間取り 3ldkwicsicstr 専有面積 m2 バルコニ タグ 100m2 1ページ/5 ページTổng diện tích sử dụng trên dứoi 100m2 ・マンション セキュリティがあり、 Diện tích sử dụng hẹp, tầm 55m2~70m2 新築 VS 中古 中古マンションはリフォーム、諸費用、仲介手数料がかかる Tiêu chí mua nhà Mua để ở, dự định có baby trong 2 năm tới




マンション国領 5階 4sldk 物件詳細 1030z Goo住宅 不動産 中古マンションの購入




60 70 80m2台3ldkに4人家族で住む マンションの間取り マンションデータplus トレンド コラム Byノムコム
100m2以上 中古マンション物件特集 広々マンション、憧れの書斎も付いてるかも♪ 表示件数が多すぎる場合は、地域・間取り・条件等で絞り込みができます。広さを追求、100m2超マンション とにかく広いお部屋がいい! 広々中古マンション特集です。 広いリビング、余裕の玄関、広さだけは後から付け足す訳にはいきません。 そんなマンションがご希望の方に100m2以上の物件を集めてみました。 146 件 1 2 3間取り: 1k 3ldk 158,000円 800,000円 仲介料半額;




南向きのマンション特集の中古マンション一覧 三菱ufj不動産販売 住まい1




100平米の間取り 広さってどのくらい 何畳で何坪 大阪kiten
サンプル間取り検索 すむすむ 住まいの設備と建材 Panasonic *条件を1つ以上選択して、検索ボタンを押してください。 延べ床面積は必須です 延べ床面積 29坪以下 30坪~ 40




ホームズ 間取り タイプ一覧 ザ パークハウス 高輪タワー新築マンションの物件情報




パークスクエア岡本 2階 3ldk 神戸市東灘区の中古マンション アットホーム マンション購入の情報




価格5500万円以上 8000万円以下 間取り 面積15m2以上 100m2以下 駅徒歩7分以内 の世田谷区のマンション一覧 品川区 目黒区の中古 マンション情報は株式会社vecs




南向きのマンション特集 湘南新宿ライン 宇都宮 逗子 池袋駅 の中古マンション一覧 三菱ufj不動産販売 住まい1




100 超の築浅レジデンス 風通しの良い角住戸 ディアナガーデン西麻 9階 2ldk 1030z 中古マンション Ocn不動産




ホームズ 間取り タイプ一覧 ザ パークハウス 高輪タワー新築マンションの物件情報




広さを追求 100m2超マンション 不動産売買のietan イエタン




ホームズ 100平米は何坪 快適に暮らすための間取り選びのポイント 住まいのお役立ち情報




100m2 マンション 一戸建て 理想の間取り探し




Suumo サンリヤン和白4番館 中古マンション物件情報




オーベル若葉台ヒルズ 3階 4ldk 稲城市の中古マンション アットホーム マンション購入の情報




どんなマンション間取りで暮らしたい 3ldk人気ランキング 住まいのお役立ち記事




マンションの間取りの S Ps Mb って 間取り表記を理解して物件探し 住まいのお役立ち記事




100m2 マンション 一戸建て 理想の間取り探し




100m2以上のマンション特集 千代田区 の中古マンション一覧 三菱ufj不動産販売 住まい1



1



1




ホームズ 間取り タイプ一覧 ザ パークハウス 高輪タワー新築マンションの物件情報




ザ パークハウス 高輪フォート タイプp 間取り マンション 一戸建て 理想の間取り探し




名古屋市千種区の中古マンション購入 三菱ufj不動産販売 住まい1




ホームズ 6人家族に適した間取りとは 快適に暮らすためのポイント 住まいのお役立ち情報




中央本線中野駅の中古マンション購入 三菱ufj不動産販売 住まい1




アパマンショップ 兵庫県川西市で100m2以上の賃貸物件情報 マンション アパート




アパマンショップ 岡山県岡山市中区で100m2以上の賃貸物件情報 マンション アパート




札幌市中央区の中古マンション 家族向け 広い 100m2以上 3ldk以上 中古マンション特集 の物件検索結果 3ページ目 アットホーム 中古 マンション購入の情報




六本木一丁目 アーカイブ マンション 一戸建て 理想の間取り探し




パークホームズ山王二丁目 ザ レジデンス Jタイプ 間取り マンション 一戸建て 理想の間取り探し




愛知県の高級マンションを探す オウチーノ




広さを追求 100m2超マンション 不動産売買のietan イエタン




新築分譲 広尾ガーデンフォレスト100m2前後2部屋募集開始 都心部物件速報




豪邸マンションの間取り図でセレブライフを妄想する かもねぎインテリア



32階 3ldk 1 0 000円 100m2 築17年 賃貸空室情報 港区を中心とした高級賃貸マンションをご紹介 東京エステート




広さを追求 100m2超マンション 不動産売買のietan イエタン




100m2超え メゾネット型 ライオンズマンション下構 リノベーション 4階 4ldk 物件詳細 1050z Goo 住宅 不動産 中古マンションの購入




京都市中京区の中古マンション購入 三菱ufj不動産販売 住まい1



majes元麻布ガーデンズ Livness リブネス 大和ハウスグループ




100m2以上 新宿駅 賃貸マンション物件一覧 恵比寿不動産




100平米超のマンションてどんなの 間取り図を集めてみた タワーマンション情報館 賃貸 大阪 タワーマンション情報館



Q Tbn And9gctpxahbzydcofn9w L7wgakmim6a50zvqfg Nfcz9goy2tkheta Usqp Cau




都営新宿線の中古マンション購入 三菱ufj不動産販売 住まい1




湾岸エリア 南側向き 中古マンション特集の中古マンション一覧 三菱ufj不動産販売 住まい1




面積100m2以上 2人入居可 シャワー の江戸川駅の賃貸物件一覧 小岩で不動産 賃貸マンション ホームメイトfc小岩駅前店 小岩駅北口店



Yahoo 不動産 パークホームズ昭島中神 青梅線 昭島 駅 徒歩16分 新築マンション 分譲マンション




広い間取りのマンションを選ぶときのポイント マンション物件選びのポイント All About



1




東京都杉並区善福寺3 西武新宿線 上石神井駅 物件詳細 1030z Goo 住宅 不動産 中古一戸建て 中古一軒家の購入




ホームズ サウスヒルズ横浜弘明寺 横浜市南区 京急本線 弘明寺駅 徒歩12分の中古マンション 物件番号




クレッセントアクアポリス 4ldk 2階の中古マンション情報 スマイティ 物件番号 14




100m2 マンション 一戸建て 理想の間取り探し




大阪ひびきの街ザ サンクタスタワー 52階 2ldk 1060z 中古マンション Ocn不動産




100m2 マンション 一戸建て 理想の間取り探し




広さを追求 100m2超マンション 不動産売買のietan イエタン




ホームズ 間取り タイプ一覧 ポレスター上甲子園新築マンションの物件情報




西宮市 専有面積100平米以上の中古マンション 物件一覧 Goo 住宅 不動産 中古マンションの購入




高洲 千葉県浦安市 の中古マンション購入 不動産売買のietan イエタン




ふれんず 福岡市博多区の中古マンション 新築マンション検索結果 間取りタイプ 4ldk以上




ホームズ 港区の賃貸 ゆったり広々100m 以上の物件 物件一覧




3ldk以上のマンション特集の中古マンション一覧 3ページ 三菱ufj不動産販売 住まい1




価格1500万円以上 5000万円以下 面積100m2以下 追焚機能浴室 の荻窪駅のマンション一覧 品川区 目黒区の中古マンション情報は株式会社vecs




Suumo 舞子グランドハイツ 海好きにはたまらない 淡路島 明石大橋が眼前のお部屋 中古マンション物件情報




グラン津田沼ヒルズ 9階 4ldk 船橋市の中古マンション アットホーム マンション購入の情報




ホームズ 100平米は何坪 快適に暮らすための間取り選びのポイント 住まいのお役立ち情報




江戸川区の中古マンション購入 三菱ufj不動産販売 住まい1




Nkzmmq7t2assam




広さを追求 100m2超マンション 不動産売買のietan イエタン




芦屋 西宮市内で専有面積100m2以上のマンションの中古マンション一覧 三菱ufj不動産販売 住まい1




広さを追求 100m2超マンション 不動産売買のietan イエタン




プレシアスコート刈谷住吉 4ldk 7階の中古マンション情報 スマイティ 物件番号 23




プラウドタワー小岩ファースト 間取り一覧 オウチーノ 新築マンション 分譲マンション Hn




タワーマンション特集 東京メトロ銀座線 の中古マンション一覧 三菱ufj不動産販売 住まい1




リノベーションマンションの最新トレンド 1ページ目 中古マンション最新トレンド ノムコム




160m2 マンション 一戸建て 理想の間取り探し




価格2500万円以上 万円以下 間取り 面積40m2以上 100m2以下 ウォークインクロゼット の渋谷区のマンション 一覧 品川区 目黒区の中古マンション情報は株式会社vecs




どんなマンション間取りで暮らしたい 3ldk人気ランキング 住まいのお役立ち記事




ジェイシティ宇品西ベイタウン 4階 3sldk 1080z 中古マンション Ocn不動産




実例 3ldk間取り比較 Suumo スーモ




データで読むマンションの魅力 マンションデータplus トレンド コラム Byノムコム




六本木グランドタワーレジデンス 仲介手数料無料 高級賃貸のエクセレント




広さを追求 100m2超マンション 不動産売買のietan イエタン




ベルテラッセ南大沢 8階 4ldk 八王子市の中古マンション アットホーム マンション購入の情報



ヒルズ白山 3階




広さを追求 100m2超マンション 不動産売買のietan イエタン




賃料4万円以上 30万円以下 面積100m2以下 2人入居可 の宮の陣駅の賃貸一覧 久留米の賃貸 With The Lifeへ




中古住宅 千葉県市川市本行徳 東京メトロ東西線 妙典駅 物件詳細 030z 中古一戸建て 中古一軒家 中古一戸建て 中古一軒家 Ocn不動産




1ldk 2ldk 3ldkの 使いやすい間取りと広さ 実例編 マンション物件選びのポイント All About




100m2 マンション 一戸建て 理想の間取り探し




人気3ldkランキング Suumo スーモ




エルザの川口市元郷のマンション一覧 マンションデータベース 東京建物の住みかえサイト




どんなマンション間取りで暮らしたい 3ldk人気ランキング 住まいのお役立ち記事




Suumo リフォーム済 そのままお住まいいただけます デュアル香里ケ丘8丁目 中古マンション物件情報




Cjd0r0itprpim




憧れのパークコート二子玉川 希少な分譲賃貸です 3ldkで約100m2のファミリー物件 ノースエステート石崎がオススメする 分譲賃貸ファミリー物件 ルーフバルコニー 駐車場 高級マンション




60 70 80m2台3ldkに4人家族で住む マンションの間取り マンションデータplus トレンド コラム Byノムコム




広さを追求 100m2超マンション 不動産売買のietan イエタン




グランドメゾン吉祥寺コート 1階 3ldk 武蔵野市の中古マンション アットホーム マンション購入の情報




平屋の間取りが知りたい 平屋でおしゃれに住みたい 人のための 坪数別 Ld別間取りモデル 住まいのお役立ち記事




ホームズ 100平米は何坪 快適に暮らすための間取り選びのポイント 住まいのお役立ち情報




Suumo ジェントリー21 中古マンション物件情報
No comments:
Post a Comment